Save
Ask
Tour
Hide
$19,040
145 Days On Site
72 W MAIN STREETREINHOLDS, PA 17569
For Rent|Industrial|Active
0
Beds
0
Total Baths
1976
Built
County:
LANCASTER
Listing courtesy of High Associates Ltd.
Due to the health concerns created by Coronavirus we are offering personal 1-1 online video walkthough tours where possible.
Call Now: 215-206-1980
Is this the listing for you? We can help make it yours.
215-206-1980



Save
Ask
Tour
Hide
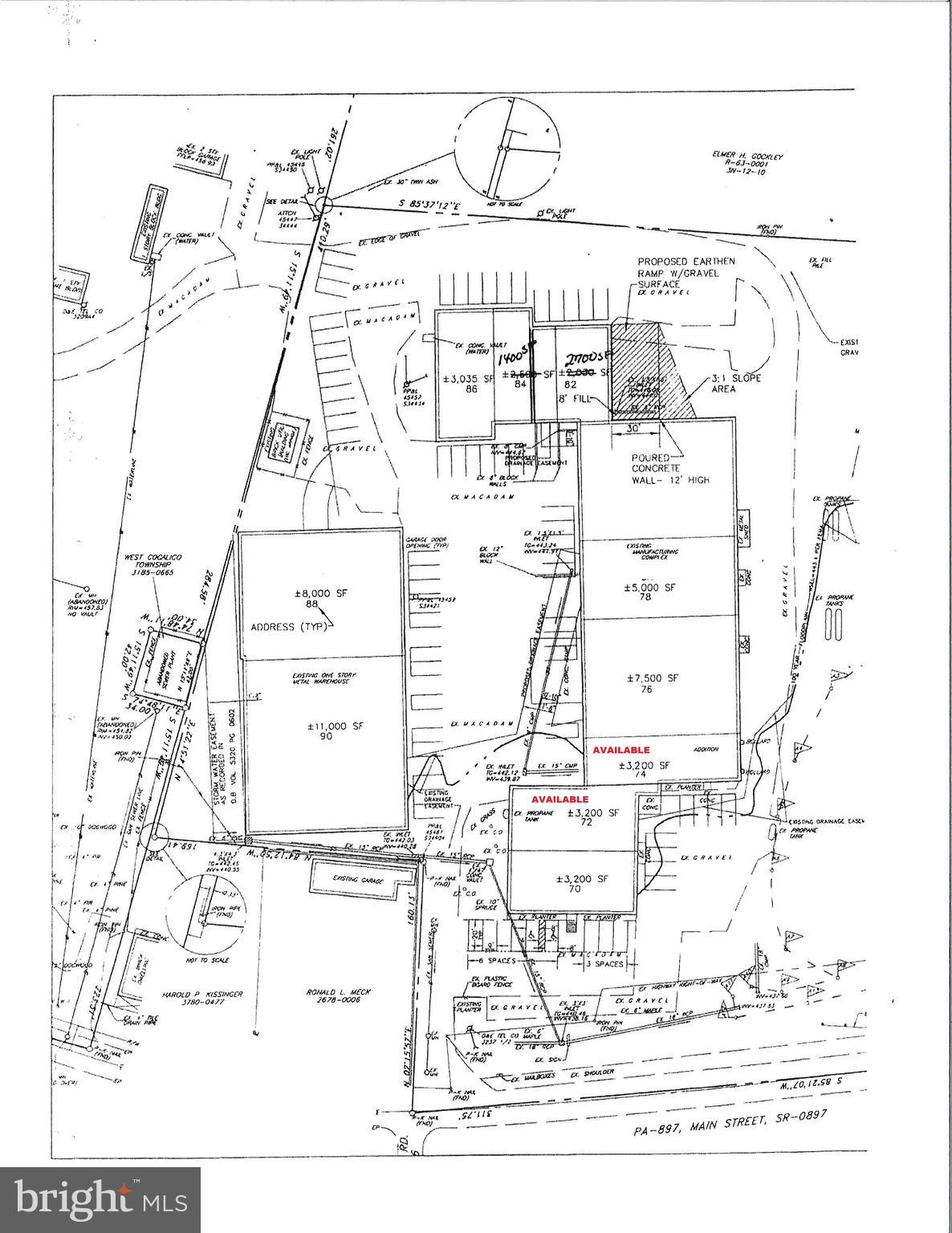
This small flex has 1,520 SF of warehouse with 15' ceiling height and the balance of the 3,200 SF is fully conditioned office space. This space space can be demo'd and converted to more warehouse at an additional cost to the Tenant. Propane gas heat. Three phase electrica service. One modified dock drive door that are 8' x 10'. CAM of $.74 Per SF cover taxes, Insurance, water, sewer, snow removal and lawn care.
Save
Ask
Tour
Hide
Listing Snapshot
Price
$19,040
Days On Site
145 Days
Bedrooms
N/A
Inside Area (SqFt)
N/A
Total Baths
N/A
Full Baths
N/A
Partial Baths
N/A
Lot Size
N/A
Year Built
1976
MLS® Number
PALA2075440
Status
Active
Property Tax
N/A
HOA/Condo/Coop Fees
N/A
Sq Ft Source
N/A
Friends & Family
Recent Activity
| 5 months ago | Listing first seen on site | |
| 5 months ago | Listing updated with changes from the MLS® |
General Features
Additional Property Use
OtherVacant
Available on
2025-10-01
Parking
Parking LotOther
Parking Spaces
4
Property Sub Type
Industrial
Sewer
Public Sewer
Water Source
Public
Zoning
INDUSTRIAL/COMMERCIAL
Interior Features
Cooling
Other
Electric
200+ Amp Service
Save
Ask
Tour
Hide
Exterior Features
Construction Details
Metal SidingSteel Siding
Community Features
MLS Area
West Cocalico Twp (10509)
School District
COCALICO
Schools
School District
COCALICO
Elementary School
Unknown
Middle School
Unknown
High School
Unknown
Listing courtesy of High Associates Ltd.
The real estate listing information is provided by Bright MLS is for the consumer's personal, non-commercial use and may not be used for any purpose other than to identify prospective properties consumer may be interested in purchasing. Any information relating to real estate for sale or lease referenced on this web site comes from the Internet Data Exchange (IDX) program of the Bright MLS. This web site references real estate listing(s) held by a brokerage firm other than the broker and/or agent who owns this web site. The accuracy of all information is deemed reliable but not guaranteed and should be personally verified through personal inspection by and/or with the appropriate professionals. Properties in listings may have been sold or may no longer be available. The data contained herein is copyrighted by Bright MLS and is protected by all applicable copyright laws. Any unauthorized collection or dissemination of this information is in violation of copyright laws and is strictly prohibited. Copyright © 2020 Bright MLS. All rights reserved.
The real estate listing information is provided by Bright MLS is for the consumer's personal, non-commercial use and may not be used for any purpose other than to identify prospective properties consumer may be interested in purchasing. Any information relating to real estate for sale or lease referenced on this web site comes from the Internet Data Exchange (IDX) program of the Bright MLS. This web site references real estate listing(s) held by a brokerage firm other than the broker and/or agent who owns this web site. The accuracy of all information is deemed reliable but not guaranteed and should be personally verified through personal inspection by and/or with the appropriate professionals. Properties in listings may have been sold or may no longer be available. The data contained herein is copyrighted by Bright MLS and is protected by all applicable copyright laws. Any unauthorized collection or dissemination of this information is in violation of copyright laws and is strictly prohibited. Copyright © 2020 Bright MLS. All rights reserved.
Neighborhood & Commute
Source: Walkscore
Save
Ask
Tour
Hide
Did you know? You can invite friends and family to your search. They can join your search, rate and discuss listings with you.