Save
Ask
Tour
Hide
$449,900
94 Days On Site
570 GREENWOOD DR (HEMLOCK) LOT 183OXFORD, PA 19363
For Sale|Single Family Residence|Pending
3
Beds
3
Total Baths
2
Full Baths
1
Partial Bath
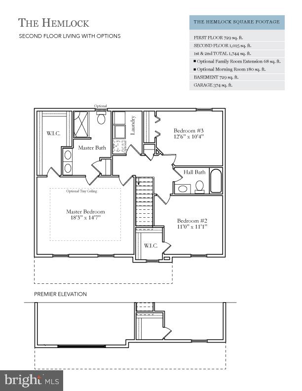
1,744
SqFt
$258
/SqFt
2021
Built
Subdivision:
PINE VIEW ESTATES
County:
CHESTER
Listing courtesy of Beiler-Campbell Realtors-Oxford
Due to the health concerns created by Coronavirus we are offering personal 1-1 online video walkthough tours where possible.
Call Now: 215-206-1980
Is this the listing for you? We can help make it yours.
215-206-1980


Save
Ask
Tour
Hide
This Hemlock floorplan is available to be built at Pine View Estates. Visit our two model homes during our weekly Open House; Wed, Thurs, Fri, and Sat from 12-5. Pine View Estates offers 6 floorplans to build. Build the Hemlock, a two-story model custom designed by the award winning Cedar Knoll Builders, at the New Pine View Estates development. This floor plan is offered with an optional front elevation. There are 5 additional floor plans to choose from. Come choose your lot at Pine View Estates!
Save
Ask
Tour
Hide
Listing Snapshot
Price
$449,900
Days On Site
94 Days
Bedrooms
3
Inside Area (SqFt)
1,744 sqft
Total Baths
3
Full Baths
2
Partial Baths
1
Lot Size
0.17 Acres
Year Built
2021
MLS® Number
PACT2113378
Status
Pending
Property Tax
N/A
HOA/Condo/Coop Fees
$50 monthly
Sq Ft Source
Estimated
Friends & Family
Recent Activity
| 2 months ago | Listing updated with changes from the MLS® | |
| 3 months ago | Listing first seen on site |
General Features
Acres
0.17
Attached Garage
Yes
Cross Street
Conner Road
Foundation
Concrete Perimeter
Garage
Yes
Garage Spaces
2
Levels
Two
Parking
AsphaltGarageDrivewayAttached
Parking Spaces
2
Property Condition
New Construction
Property Sub Type
Single Family Residence
Sewer
Public Sewer
Special Circumstances
Standard
SqFt Above
1744
SqFt Total
1744
Style
Colonial
Water Source
Public
Zoning
R
Interior Features
Appliances
Electric RangeElectric OvenGas Water HeaterDishwasherMicrowave
Basement
FullSump PumpUnfinished
Cooling
Central AirElectric
Electric
200+ Amp Service
Flooring
CarpetHardwoodVinyl
Heating
Natural GasForced Air
Laundry Features
Laundry RoomMain Level
Bedroom 2
Bedroom 3
Dining Room
Level - Main
Great Room
Level - Main
Kitchen
Level - Main
Laundry
Level - Main
Primary Bedroom
Study
Level - Main
Save
Ask
Tour
Hide
Exterior Features
Construction Details
FrameVinyl Siding
Pool Features
None
Roof
Asphalt
Community Features
Association Dues
600
HOA Fee Frequency
Annually
MLS Area
Lower Oxford Twp (10356)
School District
OXFORD AREA
Schools
School District
OXFORD AREA
Elementary School
Unknown
Middle School
Unknown
High School
Unknown
Listing courtesy of Beiler-Campbell Realtors-Oxford
The real estate listing information is provided by Bright MLS is for the consumer's personal, non-commercial use and may not be used for any purpose other than to identify prospective properties consumer may be interested in purchasing. Any information relating to real estate for sale or lease referenced on this web site comes from the Internet Data Exchange (IDX) program of the Bright MLS. This web site references real estate listing(s) held by a brokerage firm other than the broker and/or agent who owns this web site. The accuracy of all information is deemed reliable but not guaranteed and should be personally verified through personal inspection by and/or with the appropriate professionals. Properties in listings may have been sold or may no longer be available. The data contained herein is copyrighted by Bright MLS and is protected by all applicable copyright laws. Any unauthorized collection or dissemination of this information is in violation of copyright laws and is strictly prohibited. Copyright © 2020 Bright MLS. All rights reserved.
The real estate listing information is provided by Bright MLS is for the consumer's personal, non-commercial use and may not be used for any purpose other than to identify prospective properties consumer may be interested in purchasing. Any information relating to real estate for sale or lease referenced on this web site comes from the Internet Data Exchange (IDX) program of the Bright MLS. This web site references real estate listing(s) held by a brokerage firm other than the broker and/or agent who owns this web site. The accuracy of all information is deemed reliable but not guaranteed and should be personally verified through personal inspection by and/or with the appropriate professionals. Properties in listings may have been sold or may no longer be available. The data contained herein is copyrighted by Bright MLS and is protected by all applicable copyright laws. Any unauthorized collection or dissemination of this information is in violation of copyright laws and is strictly prohibited. Copyright © 2020 Bright MLS. All rights reserved.
Neighborhood & Commute
Source: Walkscore
Save
Ask
Tour
Hide
Did you know? You can invite friends and family to your search. They can join your search, rate and discuss listings with you.