5020 RITTER ROAD 211MECHANICSBURG, PA 17055
Due to the health concerns created by Coronavirus we are offering personal 1-1 online video walkthough tours where possible.

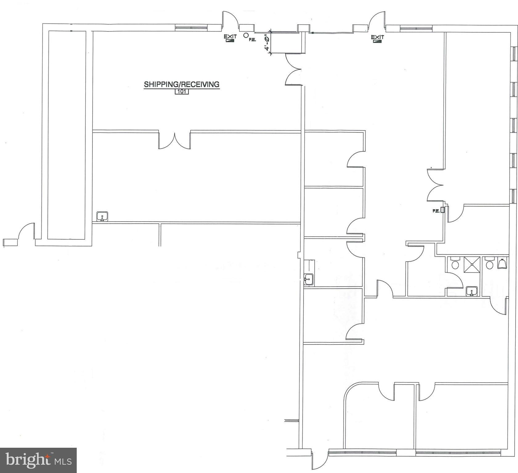
4,643 SF Flex space that holds five private offices, two restrooms, a workroom with storage, and a garage equipped with an area for shipping/receiving with two overhead grade level doors. Located in a modern & professional Office/Flex building inside the Rossmoyne Business Center business park in Mechanicsburg, Cumberland County. Flexible floor plans to accommodate various business needs. Negotiable lease terms to suit your business goals. Ample parking for employees & visitors. Security deposit is equal to one month's rent. Neighboring companies include Siemens, Comparion Insurance, American Mint, Suzuki, Progressive, Schaedler Yesco, Erie Insurance and state and federal agencies. In park services include four hotels, six restaurants and two day-cares.
| a month ago | Listing updated with changes from the MLS® | |
| a year ago | Status changed to Active | |
| a year ago | Listing first seen on site |
The real estate listing information is provided by Bright MLS is for the consumer's personal, non-commercial use and may not be used for any purpose other than to identify prospective properties consumer may be interested in purchasing. Any information relating to real estate for sale or lease referenced on this web site comes from the Internet Data Exchange (IDX) program of the Bright MLS. This web site references real estate listing(s) held by a brokerage firm other than the broker and/or agent who owns this web site. The accuracy of all information is deemed reliable but not guaranteed and should be personally verified through personal inspection by and/or with the appropriate professionals. Properties in listings may have been sold or may no longer be available. The data contained herein is copyrighted by Bright MLS and is protected by all applicable copyright laws. Any unauthorized collection or dissemination of this information is in violation of copyright laws and is strictly prohibited. Copyright © 2020 Bright MLS. All rights reserved.
Did you know? You can invite friends and family to your search. They can join your search, rate and discuss listings with you.