121 E MAPLE AVENUE 2ND FLR - #DWILDWOOD, NJ 08260
Due to the health concerns created by Coronavirus we are offering personal 1-1 online video walkthough tours where possible.




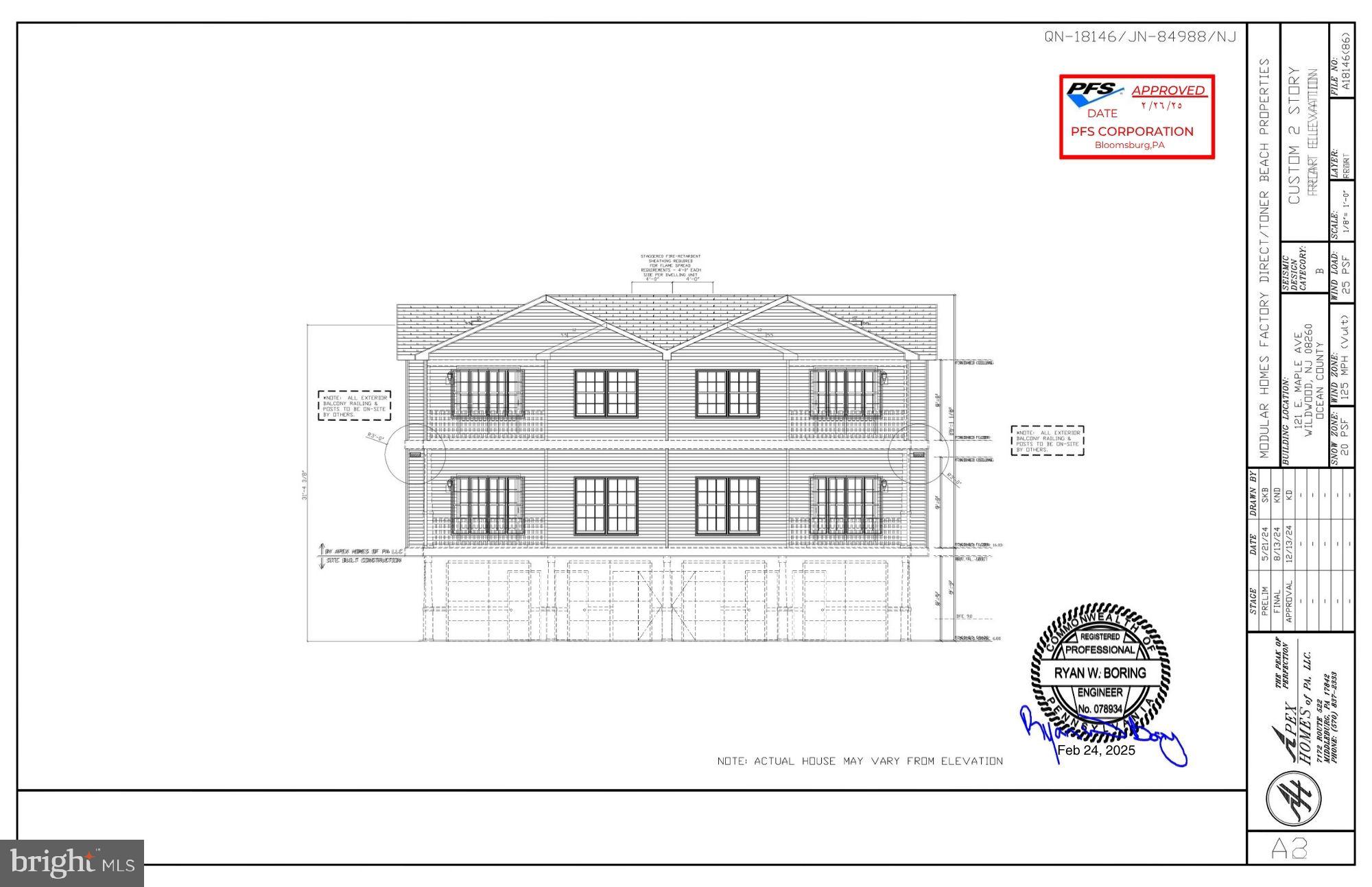
Coming 2025: Coastal New Construction in the Heart of Wildwood - 2nd Floor Unit #D - Located in one of Wildwood’s most peaceful and desirable neighborhoods, this striking new construction home is set to redefine elevated coastal living. Scheduled for completion in 2025, this detached residence blends clean contemporary architecture with refined design and upscale finishes—crafted for today’s discerning homeowner. This thoughtfully designed home features four spacious bedrooms and 2.5 bathrooms, including two full baths and a convenient half bath on the first floor. The open-concept layout is filled with natural light, creating a warm, airy environment ideal for both entertaining and everyday living. From the curb, the modern vinyl exterior offers sleek visual appeal and low-maintenance durability. Inside, you'll find a blank canvas awaiting your vision. With interior selections still customizable, buyers have a rare opportunity to design their dream kitchen, bathrooms, flooring, and finishes to suit their style and preferences. Designed with both beauty and efficiency in mind, this home incorporates energy-conscious materials and features that reduce your environmental impact without compromising comfort or convenience. Beyond the home itself, Wildwood, New Jersey offers a lifestyle like no other. From its expansive sandy beaches and world-famous boardwalk to amusement piers, water parks, dining, boutique shopping, and lively seasonal festivals—this vibrant shore town delivers something for everyone. Whether it’s watersports, biking along the coast, or simply relaxing by the ocean, Wildwood is the perfect blend of family-friendly charm and coastal excitement. Now is your chance to personalize a truly exceptional home and enjoy all that Wildwood has to offer. Taxes to be determined.
| 3 months ago | Listing updated with changes from the MLS® | |
| 8 months ago | Listing first seen on site |
The real estate listing information is provided by Bright MLS is for the consumer's personal, non-commercial use and may not be used for any purpose other than to identify prospective properties consumer may be interested in purchasing. Any information relating to real estate for sale or lease referenced on this web site comes from the Internet Data Exchange (IDX) program of the Bright MLS. This web site references real estate listing(s) held by a brokerage firm other than the broker and/or agent who owns this web site. The accuracy of all information is deemed reliable but not guaranteed and should be personally verified through personal inspection by and/or with the appropriate professionals. Properties in listings may have been sold or may no longer be available. The data contained herein is copyrighted by Bright MLS and is protected by all applicable copyright laws. Any unauthorized collection or dissemination of this information is in violation of copyright laws and is strictly prohibited. Copyright © 2020 Bright MLS. All rights reserved.
Did you know? You can invite friends and family to your search. They can join your search, rate and discuss listings with you.