60 NOTTINGHAM LANEBERLIN, MD 21811




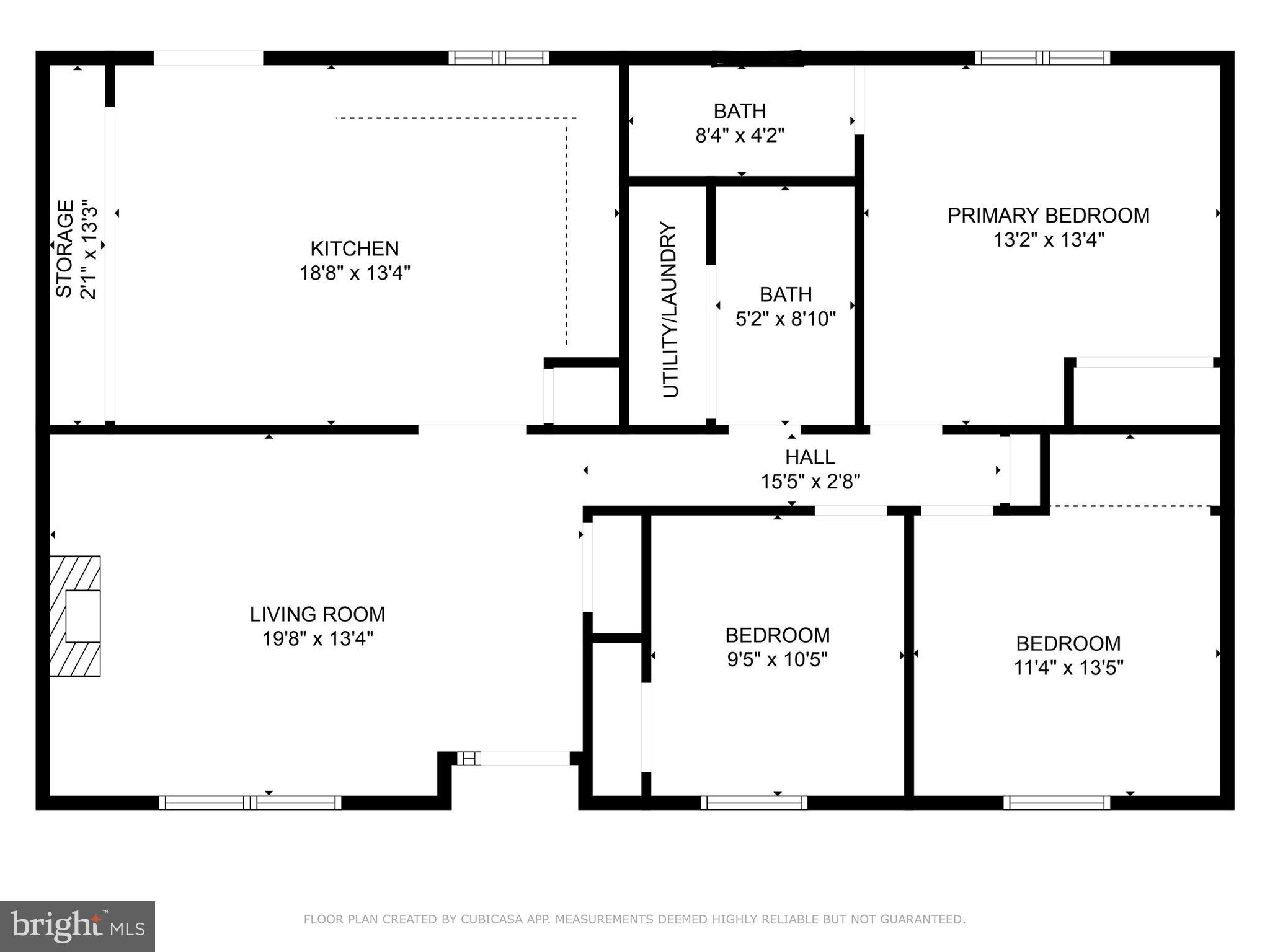
SELLERS ARE ACCEPTING BACKUP CONTRACT - Affordable Ocean Pines single-level living in Sherwood Forest near the popular South Gate! With an encapsulated crawlspace, newer roof and gutter guards - this house is ready for your updates and personal touches... sellers are offering a $3K UPDATE ALLOWANCE with an accepted offer! The possibilities are endless with 3 bedrooms and 2 full bathrooms , a large eat-in kitchen and inviting living room, sitting areas in both the front and rear yards, and ample parking for 5+ cars/boat including a spot beside the house. The current owners and their family have enjoyed this home for the past 9 years as full-time owner-occupants (not used as a rental) and all updates were made to maximize comfort and convenience (HVAC with programmable thermostat, built-in electric fireplace, walk-in showers) and minimize maintenance (ducts cleaned last year, gutter guards & roof, laminate flooring, crawlspace encapsulation). Thanks to the elevation of this section of Sherwood Forest, the owners have not had any issues with standing water beyond the OP drainage ditch. There is storage galore for bikes & beach gear with a backyard shed, attic with pull-down stairs, and wall-length closet in the kitchen in addition to bedroom and entry closets as well as a hallway linen closet. Laundry and storage is conveniently located in the hallway bathroom. Ocean Pines is known for its amenities - the yacht club and beach club, walking paths and parks, pool and golf memberships, boat ramp and marina - all of South Gate restaurant & shops as well as the pond, library, and indoor pool are a short bike ride from Nottingham Lane! Come see all that this home has to offer, schedule your private tour today! PLEASE NOTE: Fencing beside backyard shed will be removed by seller prior to settlement; note exclusions (wall decor, houseplants, items on shelves and in cabinets/drawers/closets, recliner). All floor plan measurements are approximate; buyers and their agent to confirm all tax, school, HOA, zoning, measurements, and location information.
| 18 hours ago | Listing updated with changes from the MLS® |
Did you know? You can invite friends and family to your search. They can join your search, rate and discuss listings with you.