28 FOWLER STCHARLOTTESVILLE, VA 22911
Due to the health concerns created by Coronavirus we are offering personal 1-1 online video walkthough tours where possible.




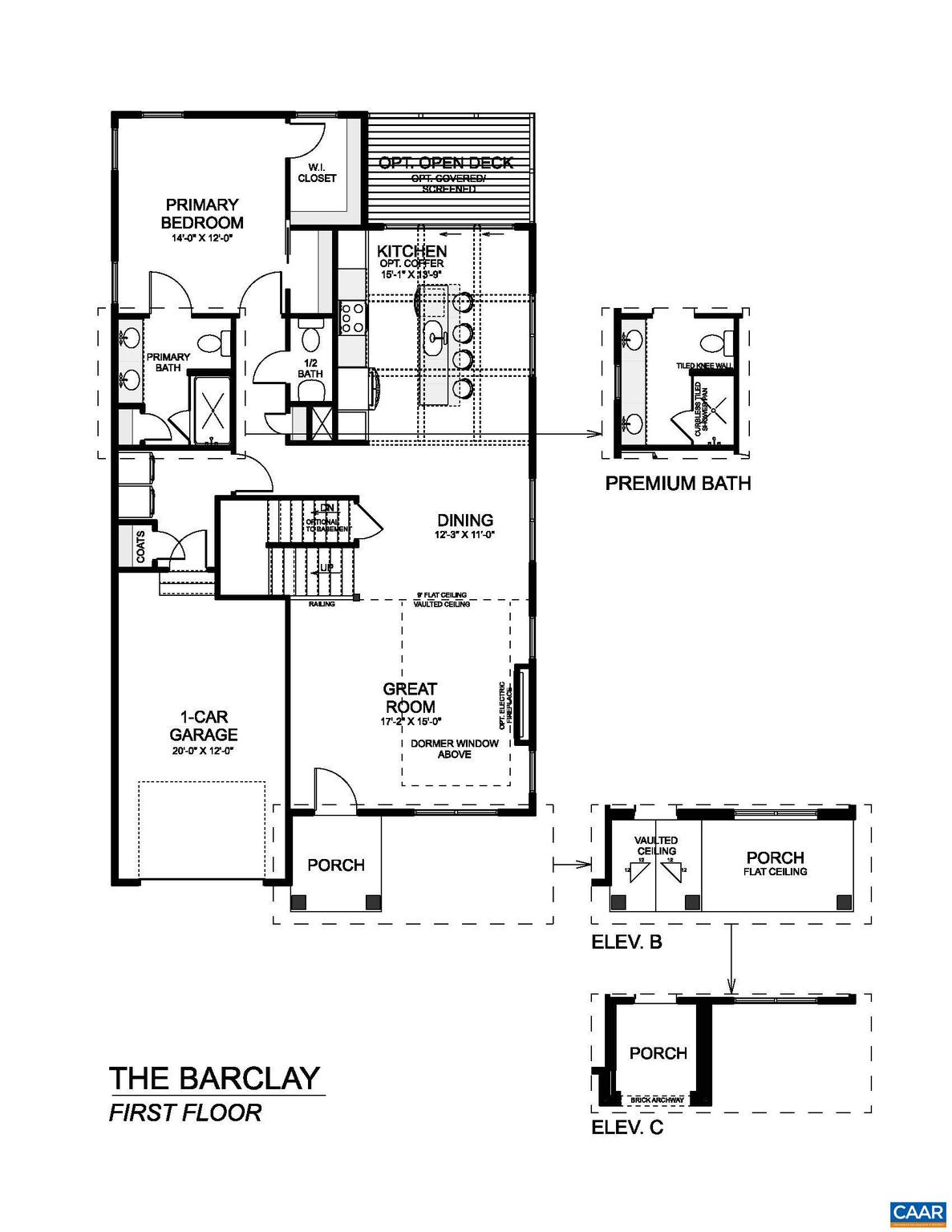
Under construction. EARLY 2026 delivery. Located in a vibrant area where every corner tells a story, Dunlora Village invites you to embrace a lifestyle that connects you to nature and a welcoming town. The brand new Barclay plan offers main-level living with a spacious primary suite, an open-concept kitchen and great room with vaulted ceilings, and a conveniently located laundry and half bath. The kitchen is positioned to maximize flow, connecting with the dining and living areas, and opens onto an optional rear deck for easy indoor-outdoor living. Upstairs, you?ll find two additional bedrooms, a full bath, a central loft, and generous unfinished storage. Need more space? Add an optional fourth bedroom suite or a private study. The Barclay also offers a basement layout with options for a rec room, media room, additional bedroom, full bath, and wet bar?making it easy to create the perfect space for entertaining or hosting guests. Three distinct exterior elevations and thoughtful design options available. Situated along the Rivanna River, Dunlora Village will offer multiple community spaces for adventures. Homeowners will have the option to explore many new experiences with a variety of homesites available. Similar photos.,Granite Counter,Maple Cabinets
| 24 hours ago | Listing updated with changes from the MLS® | |
| 3 months ago | Listing first seen on site |
The real estate listing information is provided by Bright MLS is for the consumer's personal, non-commercial use and may not be used for any purpose other than to identify prospective properties consumer may be interested in purchasing. Any information relating to real estate for sale or lease referenced on this web site comes from the Internet Data Exchange (IDX) program of the Bright MLS. This web site references real estate listing(s) held by a brokerage firm other than the broker and/or agent who owns this web site. The accuracy of all information is deemed reliable but not guaranteed and should be personally verified through personal inspection by and/or with the appropriate professionals. Properties in listings may have been sold or may no longer be available. The data contained herein is copyrighted by Bright MLS and is protected by all applicable copyright laws. Any unauthorized collection or dissemination of this information is in violation of copyright laws and is strictly prohibited. Copyright © 2020 Bright MLS. All rights reserved.
Did you know? You can invite friends and family to your search. They can join your search, rate and discuss listings with you.